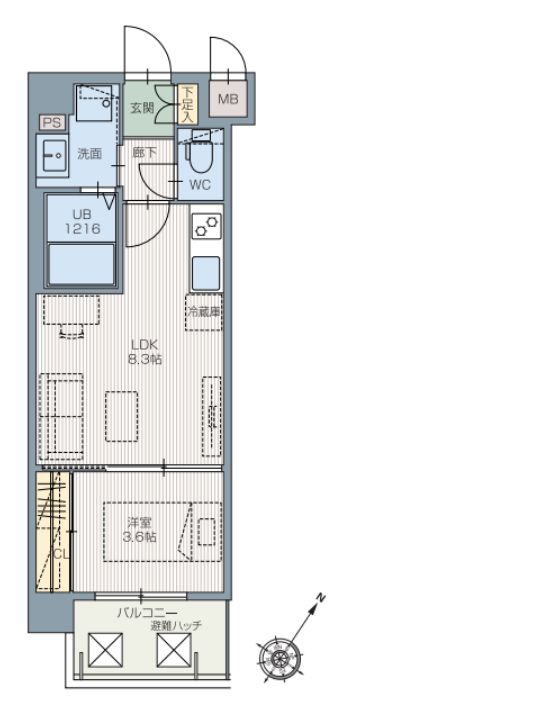
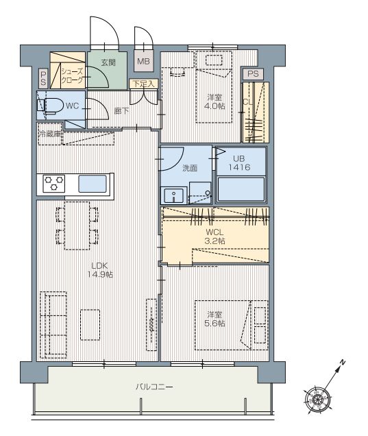
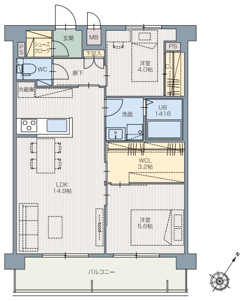
LOCATION
福岡都心からアクセス抜群の緑が多い街「春日市」
交通が便利で自然に囲まれた理想の住まい。
緑豊かな公園や自然保護区が身近にあり、心地よい散歩やサイクリングが楽しめます。
スーパーマーケットやショッピングセンター、病院、学校も近く、快適な暮らしに必要な施設が充実。
地域の温かな人々との交流も楽しめるおすすめのエリアです。
JR博多南駅 徒歩9分 約720m
マルショク 那珂川店 徒歩10分 約780m
弥永西公園 徒歩8分 約580m
セブン・イレブン春日下白水店 徒歩1分 約80m
ルミエール春日店 徒歩11分 約850m
-
-
あいくる保育園
徒歩9分
約650m
-
春日西小学校
徒歩10分
約730m
-
春日市立春日西中学校
徒歩9分
約1270m
-
下白水南コミュニティセンター
徒歩9分
約650m
-
ヤマダデンキテックランド福岡春日店
徒歩12分
約900m
-
ふくのゆ春日店
徒歩10分
約780m
-
いのうえ内科
徒歩3分
約240m
-


